Bitte Drehen

Ihr Browser ist veraltet!

Bitte aktualisieren Sie Ihren Browser, um diese Website korrekt darzustellen. Den Browser jetzt aktualisieren

×

Benediktushof Maria Veen Reken

Appartementhaus mit 20 Wohneinheiten

Zwei- bis dreigeschossiger Neubau

Leistungsphasen           1 – 9

BGF / NGF / BRI         2.220m²  /  2.015m²  /  6.780 m³

Planung 2015

Benediktushof gGmbH, Reken

1. Preis 2015

Gutachterverfahren

5 Teilnehmer

Konzept – Offenes Haus im Grünen:

Der Neubau fügt sich wie selbstverständlich in das bestehende Gelände des Rehabilitationszentrums ein und stellt als offenes Haus im Grünen einen einladenden Ort für Kinder, Jugendliche und Erwachsene dar. Eingebettet in die herausragende landschaftliche Situation des Benediktushofs ist der Bau inmitten der Natur positioniert und öffnet sich zum Hofgelände. Die Natur fließt durch das Gebäude hindurch und vitalisiert es; das Haus wird durch seine Offenheit zur identitätsstiftenden Bühne für das Leben im Benediktushof Maria Veen.

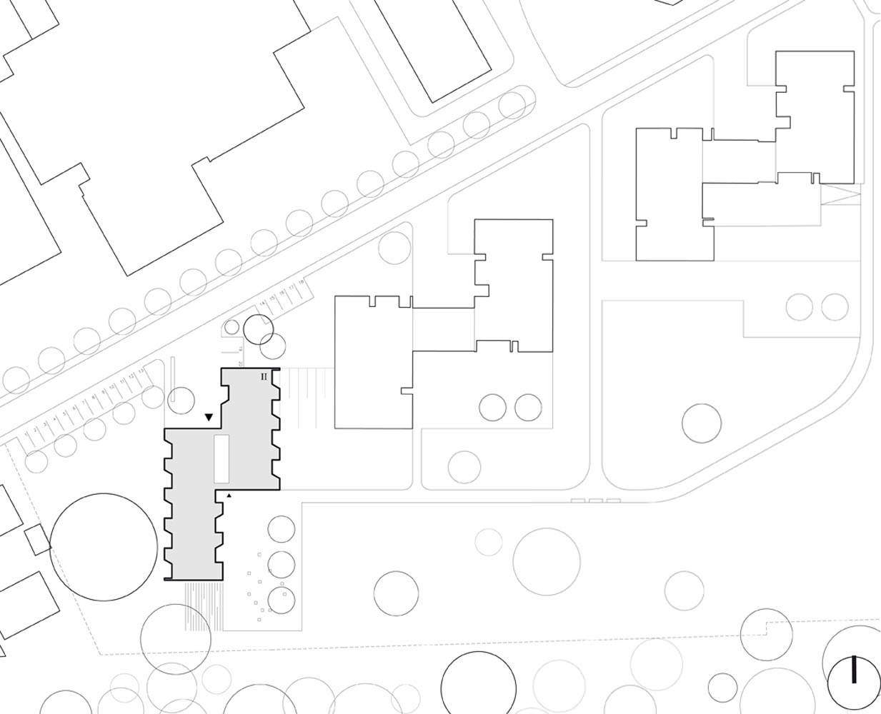
Städtebau:

Die städtebauliche Organisation des Benediktushofs gibt den Rahmen für die Neuplanung vor. Auf dem westlich gelegenen Grundstück nimmt das neue Appartementhaus die städtebauliche Form und Orientierung der beiden Wohngruppenhäuser Haus Elisabeth und Haus Bernardus auf. Gleichzeitig bildet der Neubau einen städtebaulichen Abschluss des Benediktushofs gegenüber der westlich angrenzenden Wohnbebauung. Der zweigeschossige Baukörper zeichnet sich durch eine klare Struktur aus, ohne die Umgebung zu dominieren. Zur Straße “Am Kloster” markiert ein kleiner Vorplatz den Haupteingang. Das Untergeschoss schafft eine interne rollstuhlgerechte Verbindung zwischen dem Eingangsniveau und der tiefer gelegenen Parklandschaft. Die großkronigen Bäume bleiben erhalten.

Interne Organisation:

Die klare innere Organisation lässt sich an der äußeren Struktur ablesen. Das zentrale Treppenhaus – vom Haupteingang sowie von der Parklandschaft aus sichtbar –  bildet einen lichtdurchfluteten Raum mit vielfältigen Blickbeziehungen, der zum Verweilen und gegenseitigen Austausch einlädt. Diese hohe Qualität des Erschließungsraums setzt sich in den Wohnungsfluren fort, die natürlich belichtet sind und den Blick in das Hofgelände freigeben. Kleine Sitznischen laden auch dort zum Verweilen ein und machen den Erschließungsraum zum Aufenthaltsraum. Gleichzeitig erlauben die Wohnungsflure eine natürliche Belichtung der zum Flur orientierten Küchenräume der Appartements. Die Schrägstellung der offenen Fassadenteile und Loggien schafft einerseits eine optimale Belichtung der Innenräume und andererseits eine adäquate Privatheit gegenüber den Nachbarwohnungen. Gleichzeitig gibt die Ausrichtung der Öffnungen den Blick Richtung Park vor.